Description
- Three Bedroom
- Mid terrace
- Chain Free
- Through Lounge
- Off street Parking
- Garden
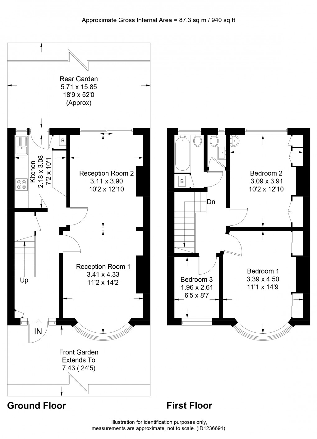
Property Address: 17 Dunster Drive,Kingsbury NW9 8EG We advise that an offer has been made for the above property in the sum of £500,000. Any persons wishing to increase on this offer should notify the agents of their best offer prior to exchange of contracts. Agents Address:243 Edgware Road Colindale NW9 6LU Agents Telephone Number :0208 200 5554 Acorn Properties are pleased to offer this chain free three-bedroom Mid Terrace home, perfectly situated in a sought-after neighbourhood midway between Kingsbury and Wembley. The property needs some renovation and compises a large through lounge with patio doors to the garden, Separate kitchen and entrance hallway, the upstairs benefits from two double bedrooms, one single and a separate bathroom and w/c.
Acorn Properties are pleased to offer this chain free three-bedroom Mid Terrace home, perfectly situated in a sought-after neighbourhood midway between Kingsbury and Wembley. The property needs some renovation and compises a large through lounge with patio doors to the garden, Separate kitchen and entrance hallway, the upstairs benefits from two double bedrooms, one single and a separate bathroom and w/c.Floorplan

To discuss this property call:
Market your property
with Acorn Properties
Book a market appraisal for your property today. Our virtual options are still available if you prefer.
Material Information
- Tenure: Freehold